Drawing details of building electrical installation plan dwg file
Description
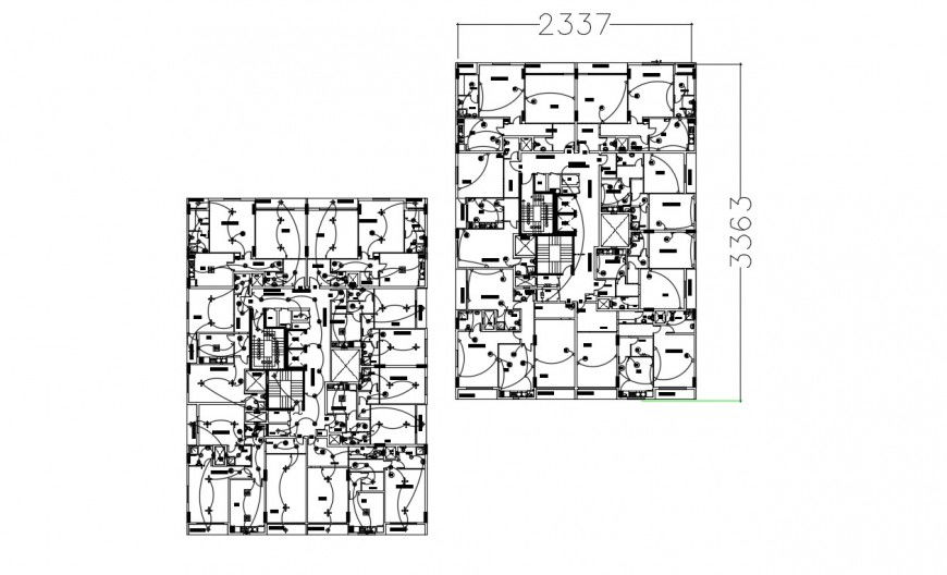
Drawing details of building electrical installation plan dwg file that shows work plan drawings details of building with electrical wiring details and earthing wire fuse circuits details also included in drawings.
Uploaded by:
Eiz
Luna
